- Главная
-
Продажа
- Производства
-
в Кингисеппе
Предложения

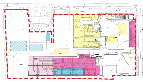
Весь объект: 6 432 м²
600 000 000 ₽
6 фото
1 план
Статус
Построен
Этаж
1, 2 этаж
Температурный режим
18 - °С, Газовая котельная
Высота потолков
9 м
Пол
Бетонный
Нагрузка на пол
5 т/м²
Ворота под погрузчик
Да
Кран-балка
10 т, 6 м до крюка x 2 шт,
5 т, 6 м до крюка x 5 шт,
3 т, 6 м до крюка x 1 шт,
2 т, 6 м до крюка x 2 шт
5 т, 6 м до крюка x 5 шт,
3 т, 6 м до крюка x 1 шт,
2 т, 6 м до крюка x 2 шт
Открытая площадка
Да
Электроснабжение
Текущее подключение: 1 000 кВт
Водоснабжение
Локальное
Водоотведение
Локальное
Инженерное оснащение
Пожарная сигнализация,
Охранная сигнализация,
Система видеонаблюдения
Охранная сигнализация,
Система видеонаблюдения
Часть земельного участка
Производство
3 824 м²
Площадь
3 824 м²
Тип
Производство
Юридический статус
Собственность
Производство
527 м²
Площадь
527 м²
Тип
Производство
Юридический статус
Собственность
Производство
225 м²
Площадь
225 м²
Тип
Производство
Юридический статус
Собственность
Сухой склад
491 м²
Площадь
491 м²
Тип
Сухой склад
Юридический статус
Собственность
АБК
1 364 м²
Площадь
1 364 м²
Тип
АБК
Характеристики
Статус готовности
Построен
Общая площадь земельного участка
6,5 Га
Общая площадь застройки
6 432 м²
Здания
Производственное x 1 шт: 3 824 м²,
Производственное x 1 шт: 527 м²,
Производственное x 1 шт: 225 м²,
Складское x 1 шт: 491 м²,
Административно-бытовое x 1 шт: 1 364 м²
Производственное x 1 шт: 527 м²,
Производственное x 1 шт: 225 м²,
Складское x 1 шт: 491 м²,
Административно-бытовое x 1 шт: 1 364 м²
Этажность
1 - 2 этажа
Инфраструктура
Огороженная территория,
КПП,
Кафе/столовая,
Зона отстоя грузового транспорта,
Парковка для легкового транспорта,
Парковка для грузового транспорта,
Гостевая парковка
КПП,
Кафе/столовая,
Зона отстоя грузового транспорта,
Парковка для легкового транспорта,
Парковка для грузового транспорта,
Гостевая парковка
Расположение
Район
Кингисеппский район
Подписаться на новости
Подпишитесь на наш телеграм-канал, чтобы узнавать о наших последних новостях и специальных предложениях.
Перейти в телеграм
Подписаться на аналитику
Раз в квартал получайте аналитические статьи, обзоры, исследования и новости о состоянии рынков коммерческой недвижимости.



























