- Главная
-
Аренда
- Производства
-
на Нефтяной дороге, 3
Предложения

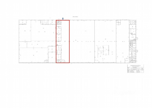
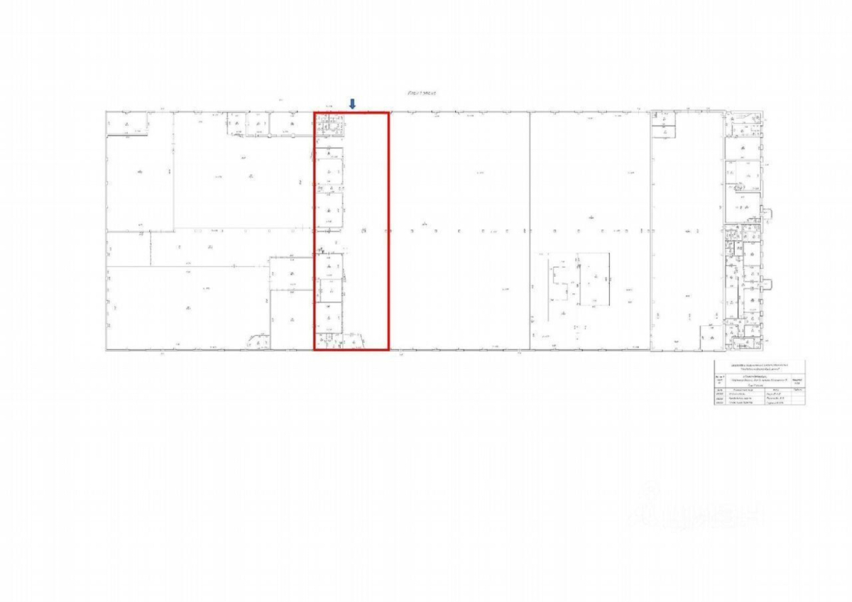
Производство-склад: 1 500 м²
1 050 ₽/м²/мес.
1 575 000 ₽/мес.
6 фото
1 план
Тип
Производство-склад
Статус
Построен
Этаж
1 этаж
Температурный режим
18 - 22 °С, Газовая котельная
Высота потолков
6 - 9 м
Пол
Ровный бетонный
Нагрузка на пол
6 т/м²
Мезонин
Да
Ворота под фуру
4 x 4,2 м,
Электроснабжение
Текущее подключение: 200 кВт
Водоснабжение
Центральное
Водоотведение
Центральное
УСН
Да
НДС
5%
Инженерное оснащение
Спринклерная система пожаротушения,
Приточно-вытяжная вентиляция,
Охранная сигнализация
Приточно-вытяжная вентиляция,
Охранная сигнализация
Арендная ставка включает
НДС
Арендная ставка не включает
коммунальные услуги,
теплоснабжение
теплоснабжение
Характеристики
Статус готовности
Построен
Общая площадь застройки
15 257,8 м²
Этажность
1 этаж
Инфраструктура
Огороженная территория,
КПП,
Кафе/столовая,
Зона отстоя грузового транспорта,
Парковка для легкового транспорта,
Парковка для грузового транспорта
КПП,
Кафе/столовая,
Зона отстоя грузового транспорта,
Парковка для легкового транспорта,
Парковка для грузового транспорта
Расположение
Ближайшее метро
м. Обводный канал
- 1 492 метров
- 18 мин. пешком
Подписаться на новости
Подпишитесь на наш телеграм-канал, чтобы узнавать о наших последних новостях и специальных предложениях.
Перейти в телеграм
Подписаться на аналитику
Раз в квартал получайте аналитические статьи, обзоры, исследования и новости о состоянии рынков коммерческой недвижимости.











































