- Главная
-
Аренда
- Производства
-
в Волхове
Предложения

Производство-склад: 13 323 м²
По запросу
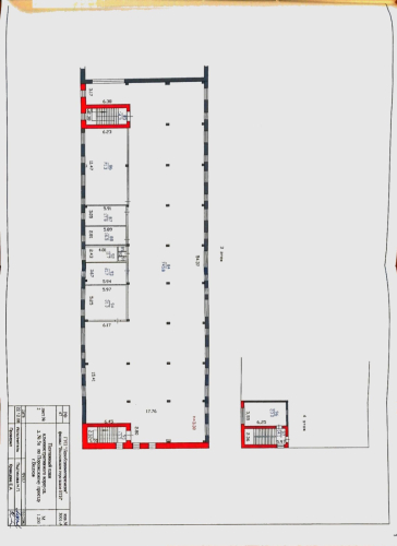
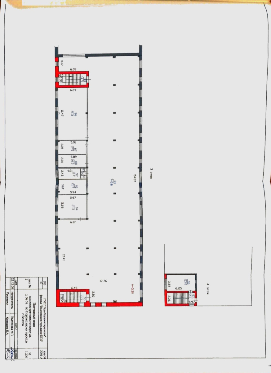
6 фото
3 плана
Тип
Производство-склад
Статус
Построен
Этаж
1 этаж
Температурный режим
18 - 22 °С, Газовая котельная
Высота потолков
8 - 12 м
Пол
Антипыль,
Ровный бетонный
Ровный бетонный
Нагрузка на пол
10 т/м²
Открытая площадка
Да
Электроснабжение
Текущее подключение: 1 600 кВт
Газоснабжение
Текущее подключение: Да
Водоснабжение
Текущее подключение: Да
Водоотведение
Текущее подключение: Да
Инженерное оснащение
Пожарная сигнализация,
Охранная сигнализация,
Система видеонаблюдения
Охранная сигнализация,
Система видеонаблюдения
Характеристики
Статус готовности
Построен
Общая площадь земельного участка
4,5 Га
Здания
Складское: 669 м²,
Производственно-складское: 9 928 м²,
Административно-бытовое: 2 726 м²
Производственно-складское: 9 928 м²,
Административно-бытовое: 2 726 м²
Железнодорожная ветка
Да
Инфраструктура
Огороженная территория,
КПП,
Парковка для легкового транспорта
КПП,
Парковка для легкового транспорта
Расположение
Район
Волховский район
Подписаться на новости
Подпишитесь на наш телеграм-канал, чтобы узнавать о наших последних новостях и специальных предложениях.
Перейти в телеграм
Подписаться на аналитику
Раз в квартал получайте аналитические статьи, обзоры, исследования и новости о состоянии рынков коммерческой недвижимости.

























