- Главная
-
Продажа
- Бизнес-центры
-
Попова'38
Предложения

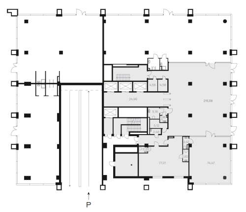
Весь объект: 5 992 м²
410 000 ₽/м²
2 456 720 000 ₽
7 планов
Характеристики
Класс
A
Статус готовности
Проект
Планируемая дата готовности
I квартал 2028 г
Тип строительства
Новое
Общая площадь объекта
5 992 м²
Количество зданий
1 шт
Этажность
5 этажей
Лифты
Пассажирский: 4 шт
Система кондиционирования
Возможна установка
Электрическая мощность
4 738 кВт/зд.
Расположение
Район
Петроградский
Ближайшее метро
м. Петроградская
- 1 345 метров
- 16 мин. пешком
Подписаться на новости
Подпишитесь на наш телеграм-канал, чтобы узнавать о наших последних новостях и специальных предложениях.
Перейти в телеграм
Подписаться на аналитику
Раз в квартал получайте аналитические статьи, обзоры, исследования и новости о состоянии рынков коммерческой недвижимости.





















