Предложения

Сухой склад: 1 660 м²
850 ₽/м²/мес.
1 411 000 ₽/мес.
5 фото
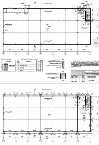
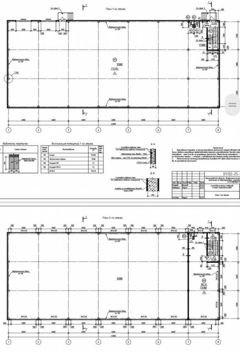
2 плана
Тип
Сухой склад
Статус
Построен
Этаж
1, 2 этаж
Температурный режим
18 - 22 °С, Электро отопление
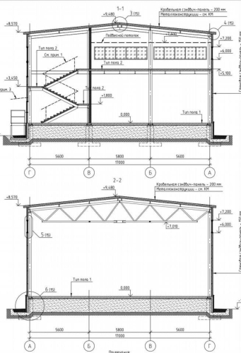
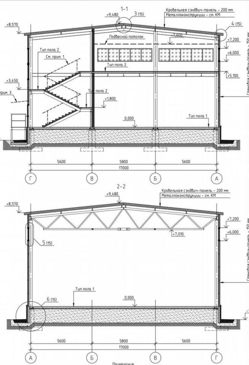
Высота потолков
7 м
Нагрузка на пол
5 т/м²
Ворота под фуру
3 x 3 м
Электроснабжение
Текущее подключение: 20 кВт
УСН
Да
Арендная ставка не включает
коммунальные услуги
Характеристики
Статус готовности
Построен
Общая площадь застройки
1 428 м²
Этажность
1 этаж
Инфраструктура
Парковка для легкового транспорта,
Парковка для грузового транспорта
Парковка для грузового транспорта
Подписаться на новости
Подпишитесь на наш телеграм-канал, чтобы узнавать о наших последних новостях и специальных предложениях.
Перейти в телеграм
Подписаться на аналитику
Раз в квартал получайте аналитические статьи, обзоры, исследования и новости о состоянии рынков коммерческой недвижимости.

























