Предложения

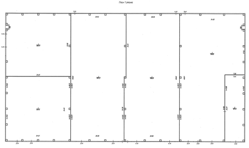
Сухой склад: 1 000 м²
1 150 ₽/м²/мес.
1 150 000 ₽/мес.
5 фото
1 план
Срок освобождения
конец лета 2026
Тип
Сухой склад
Статус
Построен
Этаж
1 этаж
Температурный режим
18 - 22 °С, Газовая котельная
Высота потолков
7 м
Пол
Антипыль,
Ровный бетонный
Ровный бетонный
Нагрузка на пол
6 т/м²
Ворота под фуру
4 x 4 м,
8 x 4,6 м
8 x 4,6 м
Электроснабжение
Текущее подключение: Да
Водоснабжение
Текущее подключение: Да
Водоотведение
Текущее подключение: Да
Инженерное оснащение
Пожарные гидранты,
Система дымоудаления,
Пожарная сигнализация,
Охранная сигнализация,
Система видеонаблюдения
Система дымоудаления,
Пожарная сигнализация,
Охранная сигнализация,
Система видеонаблюдения
Арендная ставка включает
НДС,
эксплуатационные расходы
эксплуатационные расходы
Арендная ставка не включает
коммунальные услуги

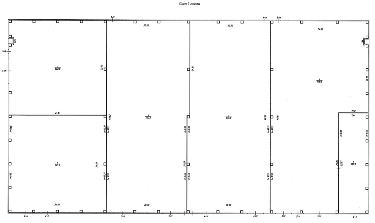
Производство-склад: 1 500 м²
1 250 ₽/м²/мес.
1 875 000 ₽/мес.
3 фото
Тип
Производство-склад
Статус
Строящийся
Планируемая дата готовности
III квартал 2026 г
Этаж
1 этаж
Температурный режим
18 - 22 °С, Газовая котельная
Пол
Антипыль,
Ровный бетонный
Ровный бетонный
Электроснабжение
Текущее подключение: 120 кВт
Водоснабжение
Текущее подключение: Да
Водоотведение
Текущее подключение: Да
Инженерное оснащение
Пожарная сигнализация,
Охранная сигнализация,
Система видеонаблюдения,
Контроль доступа (СКУД)
Охранная сигнализация,
Система видеонаблюдения,
Контроль доступа (СКУД)
Арендная ставка не включает
НДС
Характеристики
Статус готовности
Построен
Общая площадь земельного участка
5,8 Га
Здания
Складское x 1 шт: 4 360 м²,
Административно-бытовое x 1 шт: 3 150 м²
Административно-бытовое x 1 шт: 3 150 м²
Этажность
1 - 5 этажей
Инфраструктура
Огороженная территория,
КПП,
Кафе/столовая,
Зона отстоя грузового транспорта,
Парковка для легкового транспорта,
Парковка для грузового транспорта
КПП,
Кафе/столовая,
Зона отстоя грузового транспорта,
Парковка для легкового транспорта,
Парковка для грузового транспорта
Расположение
Район
Кронштадтский
Общественный транспорт до метро
Да
Подписаться на новости
Подпишитесь на наш телеграм-канал, чтобы узнавать о наших последних новостях и специальных предложениях.
Перейти в телеграм
Подписаться на аналитику
Раз в квартал получайте аналитические статьи, обзоры, исследования и новости о состоянии рынков коммерческой недвижимости.























