Предложения

Сухой склад: 864 м²
950 ₽/м²/мес.
820 800 ₽/мес.
3 фото
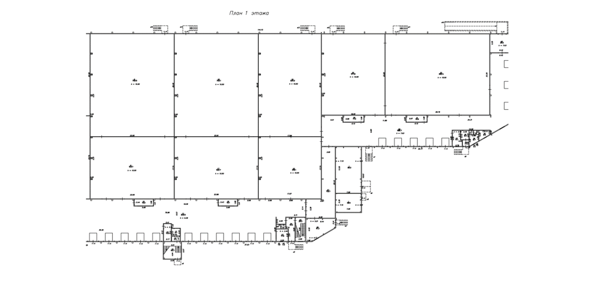
1 план
Тип
Сухой склад
Статус
Построен
Этаж
1 этаж
Температурный режим
15 - 18 °С, Газовая котельная
Высота потолков
6 м
Пол
Ровный бетонный
Нагрузка на пол
5 т/м²
Ворота под фуру
3 x 3 м
Пандус
Да
Открытая площадка
Да
Электроснабжение
Текущее подключение: Да
Водоснабжение
Центральное
Водоотведение
Центральное
НДС
20%
Инженерное оснащение
Пожарные гидранты
Арендная ставка включает
НДС,
теплоснабжение
теплоснабжение
Арендная ставка не включает
коммунальные услуги,
электроэнергия
электроэнергия

Производство-склад: 2 200 м²
800 ₽/м²/мес.
1 760 000 ₽/мес.
6 фото
1 план
Тип
Производство-склад
Статус
Построен
Этаж
3 этаж
Температурный режим
18 - 22 °С, Центральное отопление
Высота потолков
4,5 м
Пол
Полимерный
Нагрузка на пол
0,5 - 0,8 т/м²
Электроснабжение
Текущее подключение: 150 кВт
Водоснабжение
Центральное
Водоотведение
Центральное
Арендная ставка включает
НДС
Арендная ставка не включает
коммунальные услуги
Характеристики
Статус готовности
Построен
Этажность
1 - 4 этажа
Инфраструктура
Огороженная территория,
КПП,
Кафе/столовая,
Зона отстоя грузового транспорта,
Парковка для легкового транспорта,
Парковка для грузового транспорта
КПП,
Кафе/столовая,
Зона отстоя грузового транспорта,
Парковка для легкового транспорта,
Парковка для грузового транспорта
Расположение
Район
Московский
Ближайшее метро
м. Московская
Общественный транспорт до метро
Да
Подписаться на новости
Подпишитесь на наш телеграм-канал, чтобы узнавать о наших последних новостях и специальных предложениях.
Перейти в телеграм
Подписаться на аналитику
Раз в квартал получайте аналитические статьи, обзоры, исследования и новости о состоянии рынков коммерческой недвижимости.























