Предложения

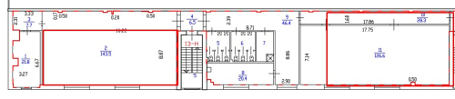
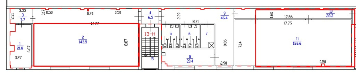
Субаренда, Сухой склад: 1 900 м²
1 393 ₽/м²/мес.
6 фото
2 плана
Тип
Сухой склад
Статус
Построен
Этаж
1 этаж
Температурный режим
18 - 22 °С, Центральное отопление
Высота потолков
12 м
Пол
Антипыль,
Ровный бетонный
Ровный бетонный
Нагрузка на пол
8 т/м²
Стеллажная система
Да
Электроснабжение
Текущее подключение: 200 кВт
Водоснабжение
Центральное
Водоотведение
Центральное
Инженерное оснащение
Спринклерная система пожаротушения,
Пожарная сигнализация,
Система видеонаблюдения
Пожарная сигнализация,
Система видеонаблюдения
Арендная ставка включает
НДС,
эксплуатационные расходы,
стеллажная система
эксплуатационные расходы,
стеллажная система
Характеристики
Класс
A
Статус готовности
Построен
Общая площадь застройки
2 200 м²
Этажность
1 этаж
Инфраструктура
Огороженная территория,
Парковка для легкового транспорта,
Парковка для грузового транспорта
Парковка для легкового транспорта,
Парковка для грузового транспорта
Расположение
Район
Пушкинский
Ближайшее метро
м. Звездная
- 2 300 метров
- 28 мин. пешком
Подписаться на новости
Подпишитесь на наш телеграм-канал, чтобы узнавать о наших последних новостях и специальных предложениях.
Перейти в телеграм
Подписаться на аналитику
Раз в квартал получайте аналитические статьи, обзоры, исследования и новости о состоянии рынков коммерческой недвижимости.







































