Предложения

2 этаж: 156 м²
2 000 ₽/м²/мес.
312 000 ₽/мес.
1 план
Этаж
2 этаж
Тип планировки
Кабинетная
Отделка
Готовая
Арендная ставка включает
НДС,
коммунальные услуги
коммунальные услуги
Арендная ставка не включает
эксплуатационные расходы,
электроэнергия
электроэнергия

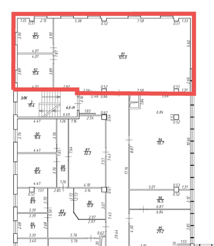
5 этаж: 143 м²
2 000 ₽/м²/мес.
286 000 ₽/мес.
1 план
Срок освобождения
конец февраля
Этаж
5 этаж
Тип планировки
Кабинетная
Отделка
Готовая
Арендная ставка включает
НДС,
эксплуатационные расходы,
обслуживание инженерных систем
эксплуатационные расходы,
обслуживание инженерных систем
Арендная ставка не включает
коммунальные услуги,
электроэнергия,
парковка
электроэнергия,
парковка

5 этаж: 288 м²
2 000 ₽/м²/мес.
288 000 ₽/мес.
1 план
Срок освобождения
конец февраля
Этаж
5 этаж
Тип планировки
Кабинетная
Отделка
Готовая
НДС
22%
Арендная ставка включает
НДС,
эксплуатационные расходы
эксплуатационные расходы
Арендная ставка не включает
коммунальные услуги,
электроэнергия,
парковка
электроэнергия,
парковка

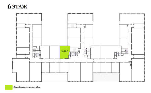
5 этаж: 1 348 м²
2 000 ₽/м²/мес.
1 план
Срок освобождения
16.04.26, но возможно и ранее
Этаж
5 этаж
Тип планировки
Кабинетная
Отделка
Готовая
НДС
22%
Арендная ставка включает
НДС
Арендная ставка не включает
коммунальные услуги,
эксплуатационные расходы,
услуги связи,
уборка,
парковка
эксплуатационные расходы,
услуги связи,
уборка,
парковка

8 этаж: 1 065 м²
2 000 ₽/м²/мес.
2 130 000 ₽/мес.
6 фото
1 план
Срок освобождения
01.05.2026 г.
Этаж
8 этаж
Тип планировки
Кабинетная
Отделка
Готовая
НДС
22%
Арендная ставка включает
НДС,
коммунальные услуги
коммунальные услуги
Арендная ставка не включает
эксплуатационные расходы,
услуги связи,
уборка,
электроэнергия,
парковка
услуги связи,
уборка,
электроэнергия,
парковка
Характеристики
Класс
B+
Статус готовности
Построен
Год постройки
2014 г
Общая площадь объекта
36 000 м²
Этажность
8 этажей
Отделка
Готовая
Лифты
Грузопассажирский: 7 шт
Система вентиляции
Приточно-вытяжная
Система кондиционирования
Центральная
Парковка
Подземная: 167 м/м,
Наземная: 16 м/м
Наземная: 16 м/м
Инфраструктура
Кафе
Расположение
Район
Выборгский
Ближайшее метро
м. Выборгская
- 1 000 метров
- 13 мин. пешком
Подписаться на новости
Подпишитесь на наш телеграм-канал, чтобы узнавать о наших последних новостях и специальных предложениях.
Перейти в телеграм
Подписаться на аналитику
Раз в квартал получайте аналитические статьи, обзоры, исследования и новости о состоянии рынков коммерческой недвижимости.

















